发现一个55岁阿姨的家,那叫一个好看,拍照给大家瞧瞧,羡慕不已
在国外,很多人一生会购置三套房子:刚毕业时,买一套小公寓,一边打拼一边寻觅自己的另一半;结婚后,有了伴侣和孩子,需要更换一套大的房子;到了中老年,则会把大房子卖掉,重新购置一套小公寓来生活,这样也能让自己能有一笔丰厚的资金用于养老。本期案例给大家分享的是一位55岁的中年阿姨的30㎡小户型公寓的装修案例,希望能给需要装修的朋友提供一些小户型装修的灵感。
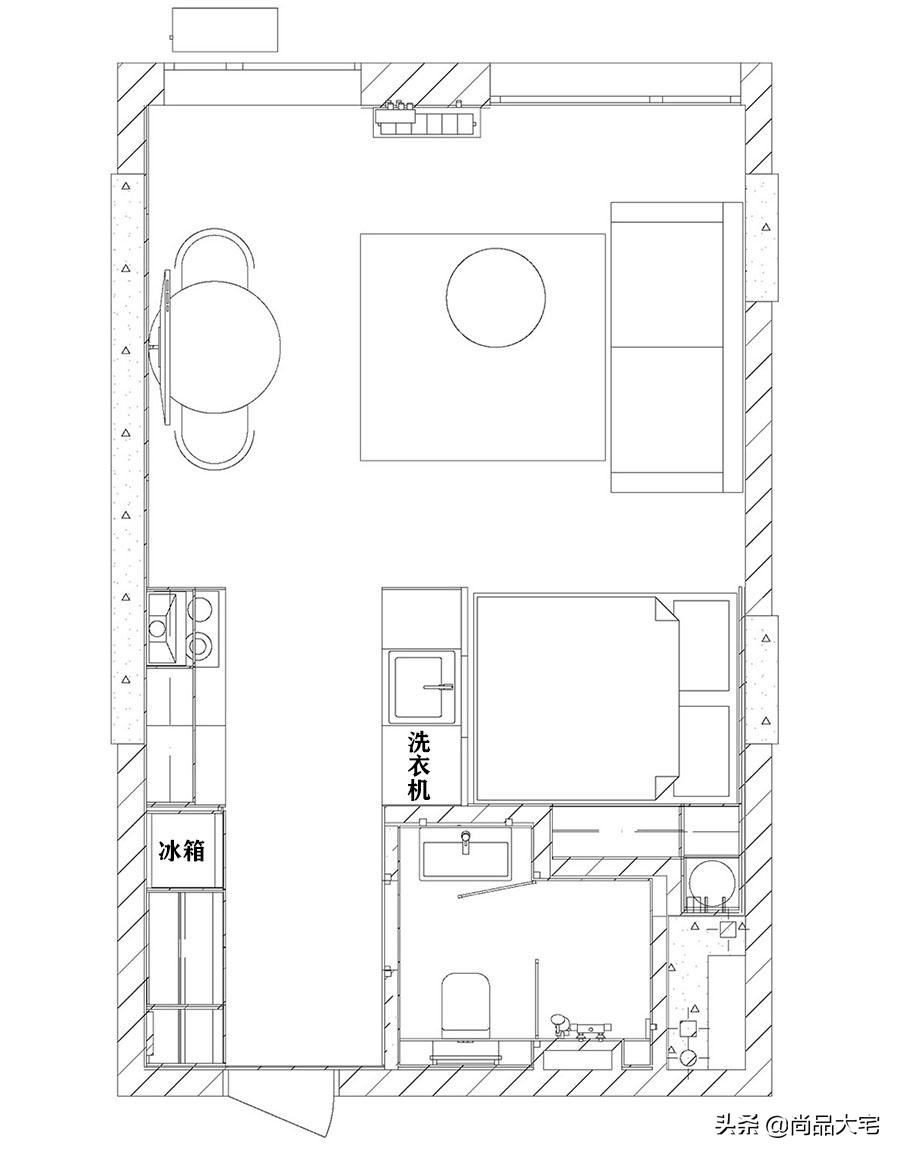
整个房间的实际面积是30平方米,整体户型是朝南的长方形结构。整体的家装设计比较简单,除卫生间和做了一个隔断的卧室区之外,其余是一体化空间。整个空间的巧妙处在于,玄关处两侧正好利用左右的空间做了厨房。这样既不占用很多的空间,而且也能够完全满足需求。整体装修风格是大气简约型,一进去便给人一种视觉上的开阔感,整体看起来十分的舒适。整个的装修在墙面上没有过多的设计和色彩搭配,而是比较注重家居的色彩搭配,整体偏冷色调的家居设备,但是却营造了一种十分别致的温馨感。
整个玄关处是长形走廊结构,门的背景墙用白色的瓷砖作为墙壁的设计,显得十分有质感。左侧是通体是白色大衣柜,加一些黑色的线条作为点缀,整个的流线十分有美感。而右侧则是卫生间区域,但做成玻璃门的设计,这样不仅能够增加小空间的视觉开阔性,并且设置在进门的玄关处,也能够起到实用的效果,方便照镜子和整理着装。
玄关的左右两侧也是厨房区,整个厨房区域很好的利用这种狭长的空间,左侧白色的橱柜,黑色的厨台显得干净整洁大气且实用性很强,充分满足了厨房的储物需求。大小和规格不一的橱柜设计也能够很好的满足不同厨房用品的摆放。而另一侧的橱柜则是选择了一种藕粉色,不仅美观,增加整个区域的色彩性,而且在整个设计上也十分有质感,尤其是黑色点状灯源的设计,以及和卧室共用隔断的设计都十分美观和耐看。
餐桌靠窗户摆放,而整个就餐环境是十分舒适的,地板和餐桌旁边的墙壁均是白色瓷砖,显得十分有质感,而且墙壁的瓷砖还做了一些造型上的设计,显得极具美感。一张黑色的小圆桌和两把座椅,看起来精致又舒适。黑色的餐桌上面再搭配一个极具创意感的摆件,就显得更加有艺术感了。本来黑色和白色这种最经典的搭配就能够给人营造一种大气和干净的感觉。
整个的客厅的装修和设计给人的感觉清新大气。在客厅的布设上,更多的是选择了一些自然元素来打造整体,给人一种清新大气的感觉。落地窗营造了一种很好的视觉感,而且使整个的空间显得通透又明亮,居住起来也会更加舒适。
一张花纹的灰色沙发搭配绿色橘黄色的抱枕,倒是显得格外有格调。背景墙没有过多复杂的装修设计,而是保留了墙壁最初的白色,再加一些画作和绿植作为点缀。这样不多不少的设计就有一种很好的视觉感。宅哥建议大家有的时候要适当地做减法处理,才能使整个空间设计显得更加协调。沙发两侧用了很多绿植的元素,打造了一种清新自然的感觉。客厅区的地毯选择和整个的装修设计相融合,显得极其有质感,而一高一低一大一小的黑色小茶几也十分精致。
卧室区简单地做了隔断,仅能够容纳一张双人床的摆放。但卧室区在设计上是美观和实用性并存的,旁边全部打造为储物柜,增加储物和收纳功能。而床上用品的选择也十分讲究,灰色的床和蓝色的被子也十分美观和耐看,并且又很舒适。卫生间
整个的卫生间区域以白色和橘黄色两种为主色调,看起来设计得既精致又大气美观。淋浴区干湿分离的设计不仅干净卫生,而且十分实用,玻璃推拉门也做成黑色的边框,更加有设计感和质感。淋浴区的墙壁是用白色防水墙砖,既方便打理,看上去又十分干净。卫生间选择顶部用橘黄色的颜色,这种拼接设计十分巧妙。
洗手池看起来极其精致,大理石质感且有花纹的墙壁加一面黑色边框点缀的镜子,整体上设计感与质感并存,且十分实用,而这个洗手池就显得更加精致了。黑色橘黄色的柜门不仅和顶部的橘黄色相呼应,而且十分美观。抬高式的白色洗手池也更加干净,而且方便清理两侧的灯源设计也能够使人照得更加清晰。
结语:这样的一个面积虽然只有30平米,但是却打造的大气美观又舒适的家装设计,你喜欢吗?小户型装修的时候就可以很好的借鉴这种装修风格,整体上没有过于复杂的设计,而是用家具的色彩来搭配整个的设计,而且在储物和实用性方面也做得恰到好处。
平面布置图
玄关
厨房
餐厅
客厅
卧室
★《布宫号》提醒您:民俗信仰仅供参考,请勿过度迷信!
本文经用户投稿或网站收集转载,如有侵权请联系本站。
